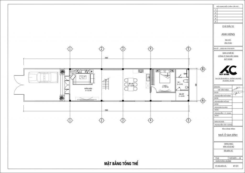
Thiết kế theo phong cách hiện đại Thiết kế theo phong cách hiện đại Thiết kế theo phong cách hiện đại Thiết kế theo phong cách hiện đạiMặt tổng thể được bố trí:sân để xe ô tô, 1 khách, 1 bếp, 1 ngủ, 1 vệ sinh chungMặt bằng tầng 2 có ban công, 3 phòng ngủ với 1 vệ sinh chung Mặt bằng tầng 3 có ban công, 1 phòng thờ, 1 phòng 2 phòng học (có thể đổi chức năng tùy gia chủ), 1 sân phơi
Có thể bạn quan tâm
Ngôi nhà 2 tầng hoàn hảo tại Nam Đinh
Mẫu nhà mặt tiền 5m...
Thiết kế nhà thờ họ nhỏ tiết kiệm
Nhà thờ họ mặt tiền 8M - Lh: 0972216822 - 0838115533...
Thiết kế nhà phố 3 tầng
Thiết kế nhà 3 tầng...
Nhà lô phố 3 tầng hót năm 2024
Thiết kế nhà phố 5M mặt tiền đẹp 2024...
Mẫu nhà 2 Tầng siêu tiết kiệm
Gia đình anh Nam có sở hữu được lô đất 4Mx16.8M, mong muốn tìm được...
PHONG THUỶ BÁT TRẠCH VÀ HƯỚNG DẪN XEM PHONG THỦY BÁT TRẠCH CƠ BẢN
Cách xem phong thủy bát trạch...
Tổng hợp mẫu nhà cấp 4
Tham khảo mẫu thiết kế nhà cấp 4 đẹp ở vùng nông thôn Việt Nam...
Nhà mái nhật – DDNC414
Tham khảo mẫu thiết kế nhà cấp 4 đẹp ở vùng nông thôn Việt Nam...